添加日期:11-06-03 来源:原创 作者:pp-frpp 热度:
所属类别:异径管件 tag标签:pvdf大小头 异径大小头
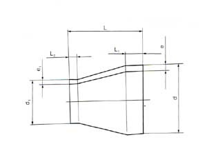
产品说明
pvdf大小头
pvdf异径大小头
相关文章
最新文章
上一页:法兰异径管、对焊异径管、承插异径管
下一页:frpp大小管接头、异径大小管接头
关键字:pvdf大小头 异径大小头
pp管 pp管材 frpp管 pph管 pvdf管